Notice of Public Hearing

Type: Public Notice

NOTICE OF PUBLIC HEARING

The District of 100 Mile House will hold a Public Hearing in the Municipal Council Chambers, located at 385 Birch Avenue (Fourth Street entrance), 100 Mile House, on Tuesday, Oct. 14, 2025 at 5:30 p.m. to consider Official Community Plan Amendment Bylaw No. 1457, 2025 and Zoning Amendment Bylaw No. 1458, 2025. The purpose of the amendment bylaws is to amend District of 100 Mile House Official Community Plan Bylaw No. 1288, 2016 and Zoning Bylaw No. 1290, 2016.

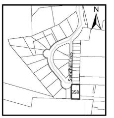
Subject Property: Lot 14, Plan EPP103994, DL 2139, Lillooet District, also known as 358 
Sandhill Crescent

Image
Sandhill public hearing map

The proposed bylaw amendments are to:

  • change the designation of the property in the Official Community Plan from Medium Density Residential to High Density Residential; and
  • change the zoning of the property from Residential Medium Density (R-4) to Comprehensive Development 3 (CD-3) Zone.

The purpose of the amendments is to provide a specialized senior’s residential housing development.

The proposed bylaws may be inspected during normal working hours in the Municipal Office, 385 Birch Avenue until 4:00 p.m.  Oct. 14, 2025. If you deem your interests to be affected by these bylaws, please submit your comments in writing or attend the Public Hearing and you will be given an opportunity to be heard.                                                                                

If you require information regarding this bylaw, please contact the undersigned at 250-395-2434.   

Sincerely,


Joanne Doddridge
Director of Economic Development & Planning     

Last updated